Стартовый профиль для монтажа панелей ПВХ. Как правильно подобрать?
- Стартовый профиль для монтажа панелей ПВХ. Как правильно подобрать?
- Стартовый профиль для сэндвич панелей. Классификация стартовых конструкций
- Как крепить стартовый профиль для ПВХ панелей. Выбор панелей на потолок
- Профиль стартовый для ПВХ панелей. Монтажные работы
- Стартовый профиль для ПВХ панелей на потолок. Монтаж пластиковых панелей ПВХ к потолку: полная пошаговая инструкция
- Стартовый профиль для фасадных панелей. Особенности
- Финишный профиль для ПВХ панелей. Пластиковые профили для панелей ПВХ
Стартовый профиль для монтажа панелей ПВХ. Как правильно подобрать?
Профиль для панелей ПВХ используется довольно часто. Сегодня на рынке представлено множество модификаций таких изделий, но все они предназначаются для решения единственной задачи.
При покупке этого продукта следует учитывать несколько факторов.
- Вид профиля. Здесь важно учитывать только место, где будет использоваться данное изделие. Если нужно облицевать лишь часть поверхности без углов и проемов, тогда вам нужны только стартовые элементы, которые будут располагаться по периметру. Иногда понадобятся и декоративные накладки.
- Дизайн. Особое внимание следует обращать на цвет материала. Сегодня многие компании выпускают белый профиль, который подходит под различные стили интерьеров. Но если вам нужны цветные изделия, тогда их можно найти в различных специализированных магазинах или приобрести под заказ.


- Материал. Особого выбора здесь производители не предлагают. В большинстве случаев нужно выбрать между металлом или пластиком. При этом важно проанализировать только качество самого продукта. Если вы планируете использовать пластиковый профиль на улице, то нужно отдавать предпочтение такому, который способен выдерживать морозы без потери своих прочностных характеристик.
- Технические параметры. Особое внимание здесь обращают только на ширину паза, куда будет входить пластиковая панель. Не следует использовать слишком узкий профиль, так как со временем он может прийти в непригодность. Ширина же паза практически всегда является стандартной, так как все панели выпускаются под один типоразмер.
Если вы приобрели нестандартные модификации планок, то нужно обязательно проверить, подойдет ли профиль для них.


Стартовый профиль для сэндвич панелей. Классификация стартовых конструкций
Стартовые формы отличаются друг от друга по форме сечения. Пластиковые откосы устанавливают по аналогии с конструкторами. Все детали нужно максимально унифицировать , чтобы конструкция получилась функциональный. Каждая ее часть имеет свою функцию и назначение. Стартовые профили для откосов используются с целью крепежа пластиковых панелей к несущему основанию и их стыковки друг с другом. Изготавливаются они как из ПВХ, так и их металла.
В зависимости от конструкции, они могут быть предназначены для крепления элементов декора разными методами и в разных частях проема. Обозначаются они буквами. На рынке представлены такие их разновидности:
- I -профили;
- F;
- L;
- П.
I-профиль имеет сечение в форме буквы I — одной центральной полочки и двух боковых. Его устанавливают непосредственно на стену и прикрепляют к нему гипсокартонные или пластиковые откосы. Благодаря особой форме , такую деталь можно прикрепить к проему почти в любом его положении.
Наиболее распространенным видом пластиковых стартовых профилей является тот, что выполнен в форме буквы F. Он оснащен одной длинной полочкой и двумя короткими, которые примыкают к длинной с одного края.
Посредством таких форм можно устанавливать откосы из различных материалов. Например, сэндвич-панелей, ПВХ, композитных материалов на основе дерева или же гипсокартонного листа.
Конструкция такого профиля позволяет ему выполнять сразу две функции:
- декоративную;
- крепежную.
Благодаря второй узкой полочке можно закрыть стык облицовочной панели без использования шпаклевки, декоративных уголков и других дополнительных элементов .
Посредством L -профиля можно установить стандартные пластиковые или гипсокартонные откосы с толщиной в 10 мм. Сечение включает три полочки — одну широкую и две узкие. Крепить его следует перпендикулярно оконной плоскости, при этом широкая полочка будет прилегать к стене проема, узкая — к оконной раме, а противоположная длинной узкая полочка используется как маскировка стыковочного шва в месте прилегания панели. А П-профиль по сфере использования и конструкции напоминает предыдущий, однако разница заключается в том, что такая деталь имеет две широкие полочки, которые соединены узкой. С его помощью можно закрывать неровные или широкие швы.
Как крепить стартовый профиль для ПВХ панелей. Выбор панелей на потолок
Для отделки потолка в большинстве случаев используют светлый однотонный пластик, например, белый или близкий по цвету. Что касается фактуры, доступны матовые или глянцевые варианты, а также панели с вставками, имитирующими металлический блеск.

Обшивать потолок наиболее целесообразно глянцевым пластиком. Блестящая поверхность визуально делает помещение несколько выше, просторнее и благодаря отражающим свойствам – светлее, что позволяет устанавливать менее мощные светильники или использовать меньшее их количество.

Помимо цвета и фактуры ПВХ профиль условно разделяют на потолочный и стеновой. Потолочный отличается меньшей толщиной поверхностных слоев и панели в целом. Он не такой прочный, но и весит меньше, что положительно сказывается на несущей конструкции.
Стеновой пластик вполне пригоден для обшивки потолка, однако это нецелесообразно, так как стоит он дороже, а от его механической прочности на данном участке толку мало.
Достаточно распространены панели, внешне напоминающие вагонку. Их ширина, как правило, невелика (100 -120 мм), а срез профиля соответствует деревянным образцам. Из-за этого поверхность, обшитую таким материалом, еще называют реечной (по причине внешнего сходства).

Снизу — обычная панель, сверху — ПВХ вагонка
На потолке чаще используют бесшовный профиль. Это в большинстве своем широкие панели (200-250 мм), монтажный стык между которыми практически не заметен, что в результате позволяет добиться сплошной гладкой плоскости.

ПВХ панели крепят либо на предварительно собранный каркас ( обрешетку ), либо непосредственно на черновой потолок.

Обрешетка из металлопрофиля
Первый вариант более предпочтителен – он проще, и в результате отделка получается качественнее. К тому же при монтаже без каркаса достаточно затруднительно использовать врезные светильники и прокладывать коммуникации.
В целом, установка обрешетки и пластиковых панелей достаточно проста – не требует высокой квалификации строителя, серьезных профессиональных навыков или специального оборудования.
Профиль стартовый для ПВХ панелей. Монтажные работы
Разберем более подробно, как используется профиль для откосов пластиковых окон при создании надежного каркаса. А все начинается с подсчета требуемого количества деталей. Потому что крепежный молдинг продается поштучно, и его длина, как правило, стандартна.
Монтаж сводится к следующему:
- Поверхность стены анализируется на наличие повреждений.
- Трещины заделывают раствором, а выпуклости срезают.
- Рабочая плоскость выравнивается в случае необходимости штукатуркой.
- На стену закрепляется обрешетка. Для нее используют деревянные рейки или профиль из легкой стали.
- Стартовый уголок для пластиковых панелей размещают по периметру стены. Причем нужно проследить, чтобы не было перекоса. Иначе не удастся расположить стыкуемые элементы в одной плоскости.
- Крепеж осуществляют на скобы либо специальные саморезы.
- Угловые элементы устанавливают по такому же принципу. Главное правильно подобрать детали для внешнего и внутреннего угла.
- Промежуточные I-профили применяют по мере необходимости, если длины облицовочных панелей не хватает, чтобы прикрыть всю стену.
Что такое доборы для пластиковых окон
Перед началом работ выполняются тщательные замеры. Причем обязательно необходимо учитывать толщину направляющего и промежуточного профиля. Это особенно важно, когда нужно смонтировать не одну опорную линию, а несколько. Потом желательно выбирается направление, в котором будет проходить укладка листов. Это поможет минимизировать видимость стыков между панелями.
Нужно не забывать об одном свойстве пластика. Он может сужаться или расширяться при изменении окружающей его температуры воздуха. Поэтому необходимо всегда оставлять небольшой зазор между стеной и материалом.
Иногда удобнее крепить профиль с помощью различных полимерных составов. Если позволяет поверхность стены, то приклеить к ней элементы намного легче и быстрее. И когда весь стартовый профиль для окон ПВХ образует надежный каркас, переходят к монтажу облицовочных панелей.
В основном вся работа сводится к тому, что нужно вставить торец листа в пазы профиля. Затем закрепить панель на стене. Для этого ее либо прикручивают к обрешетке, либо приклеивают. Предварительно не забывают выравнивать материал.
Откосы для пластиковых окон: материалы для внутренней и наружной отделки
Коротко о главном
При облицовке стен или оконных откосов пластиковыми панелями понадобятся различные направляющие профили. Они бывают четырех видов и каждый из них выполняет конкретную задачу. Но основная функция у них общая. Либо служить соединением между стыками, либо скрывать торцы облицовочных листов.
Стартовый профиль для ПВХ панелей на потолок. Монтаж пластиковых панелей ПВХ к потолку: полная пошаговая инструкция
Для отделки потолков в настоящее время довольно часто используются панели ПВХ. Изначально пластиковый потолок начал применяться в общественных зданиях, но с течением времени получил и широкое распространение и в жилищном строительстве. В статье подробно рассмотрим, как сделать потолок из пластиковых панелей своими руками.
Выбор панелей на потолок
Весь материал можно подразделить на:
- потолочный;
- и стеновой.
Главное отличие его заключается в весе панелей. Для потолков выпускается меньший по весу материал, работать с такими панелями следует с особой осторожностью. Можно устроить потолок и из стеновых панелей, но не стоит нести лишние финансовые затраты.

Вариант отделки потолка пластиковыми панелями
По размерам имеются панели в виде вагонки, такие потолки называются реечными.
Выпускаются бесшовные панели ПВХ, стыки на потолке почти незаметны. На гранях материала имеются пазы и шипы, как на деревянной вагонке, для монтажа материала.
Производятся еще панели листовые. Они монтируются несколько реже из-за более сложного монтажа. Но стоит отметить, что при дизайнерском решении, можно выполнить необычный по внешнему виду потолок.
Самым простым для монтажа можно считать реечный потолок.
Даже, несмотря на огромный выбор, чаще всего потолок выполняется из панелей ПВХ однотонных, светлых тонов. Наибольшим предпочтением являются панели белого цвета или слоновой кости.
По внешнему виду панели могут быть как матовыми, так и глянцевыми. Оригинальным решением дизайнера может являться даже материал с рельефом и различными вставками на поверхности панели ПВХ.
В частном секторе пластик для потолка обычно применяется в помещениях небольшой площади:
- кухне;
- ванной комнате;
- прихожей;
- лоджии.
В этих помещениях лучше выбрать панели с глянцевой поверхностью, так как они визуально могут увеличить высоту потолка и зрительно площадь несколько увеличивается.
При использовании глянцевых панелей, можно значительно уменьшить и количество встроенных светильников. Отблески с поверхности панелей частично помогут увеличить освещаемость этих помещений.
Положительные и отрицательные стороны материала
Постоянно идет спор — вредный или нет пластик для человека. Этот материал присутствует практически во многих сферах жизни. Из пластика изготавливается множество предметов, даже продукты питания выпускаются в этой упаковке.
Различные вредные микроорганизмы не могут распространяться в пластике, он широко представлен при изготовлении различных медицинских приборов, используется для отделки помещений больниц и поликлиник.
К отрицательным моментам можно отнести горючесть материала, но он начинает горение при температуре около 350 градусов, а отделочные материалы из ДСП, ДВП начинают гореть уже при температуре в 250 градусов.
Пластик выделяет при горении дыма в два раза меньше, чем ДСП, ДВП. Правда стоит отметить, что выделяемые вещества при горении пластика, довольно токсичны для человека.
Все-таки, панели из ПВХ имеют довольно много привлекательных сторон, и правильная эксплуатация помещений с этой отделкой имеет много преимуществ.
Материал доступен по стоимости и не очень сложен при его монтаже. Достаточно иметь обычные строительные навыки, и монтаж потолка из панелей ПВХ вполне возможен своими руками.
Какие материалы нужны и расчет количества
Для подсчета количества материала, необходимо определить площадь потолка , которую необходимо отделать. Но нельзя просто посчитать площадь и купить соответствующее количество материала. Для точного определения нужного количества необходимо учитывать размеры ламелей.
Например: Если размеры потолка комнаты 3 на 4 метра. То хорошо подойдут ламели длиной 6 метров. Их можно в магазине разрезать пополам, тем самым упростить перевозку. И при ширине ламели 25 см нужно купить 8 штук.
Если размеры больше 3 метров, то можно расположить панели вдоль длиной стены. Порезать все по 2 метра. При монтаже ПВХ панелей на потолок соединить ламели с помощью Н профиля в двух местах.

Расчет количества материала
Для правильного подсчета лучше сделать схему, и по схеме найти оптимальное расположение ламелей. Найти решение, при котором остаются меньше отходов и соединений Н профилем.
Также понадобиться L-профиль. Его длина ровна периметру потолка. Некоторые мастера используют два L-профиля, повернутые друг к другу вместо одного H-профиля. Можно так сделать, если его не окажется при покупке материала.
Для обрешетки можно использовать деревянные рейки или оцинкованный профиль. В случае использования дерева, река должна быть сухой и ровной. Иначе сложно будет сделать хорошую обрешётку. И если лес влажный, то после высыхания его обязательно поведет.

Профиль для обрешетки под ПВХ, саморезы
Длина деревянной рейки ровна длине периметра плюс длина реки для обрешетки. Расстояние между брусками рекомендуется 40-50 см. Рекомендуется отметить на схеме положение и определить их количество и длину.
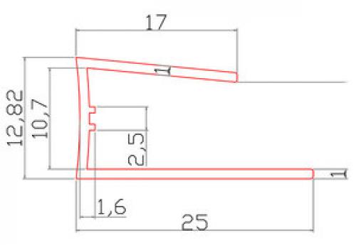
Стартовый профиль для фасадных панелей. Особенности
Стартовый профиль для сайдинга – это первый и основной фрагмент, от которого зависит, насколько удачной получится отделка. Планка имеет сложную форму, которая условно подразделяется на несколько элементов.
Вверху полоса оснащена рядом вытянутых отверстий, которые позволяют надежно зафиксировать ее к основе. Может быть с одним или двумя рядами крепежных пазов.
Внизу форма элемента выглядит как зигзаг и представляет собой замковое соединение. Это также дает возможность надежно закрепить первую деталь сайдинга.

Когда монтируется металлосайдинг, то следует стартовую панель располагать в обратном порядке. Это обусловлено тем, что укладка происходит с верхней части к нижней. Для виниловой все делается в обычном порядке.

Стартовая планка, как правило, монтируется поперек обрешетки, поэтому важно под нее сделать жесткую основу, особенно если это металлический сайдинг. Например, для деревянной обрешетки это подойдут перфорированная рейка или уголок. Если обрешетка оцинкованная CD, то лучшим решением будет выбор UD профиля.

В случае монтажа фирменной вентилируемой системы фасада стоит использовать основание, которое рекомендует производитель. Цветовое решение начальной планки не имеет значения, так как она будет полностью скрыта панелью. Таким образом, на облицовке ее не видно.
Стартовый профиль наделен рядом положительных качеств. Одно из основных – это устойчивость к коррозии, различным деформациям, трещинам. Погодные факторы не влияют на прочность. Качественный материал, как правило, хорошо переносит температурные перепады, а также воздействие солнечных лучей. Монтаж начальной планки можно проводить без специальных инструментов.

Финишный профиль для ПВХ панелей. Пластиковые профили для панелей ПВХ
Профили для монтажа пластиковых панелей, молдинги для ПВХ панелей
Для монтажа панелей, выполненных из ПВХ, необходимо обязательно использовать пластиковые профили, так как отделка помещения невозможна без их использования. Пластиковые профили очень часто называют еще комплектующими, аксессуарами, планками, погонажем и молдингами. Существует несколько типов профилей, у каждого из которых свое определенное предназначение.
В данной статье будут рассмотрены все, имеющиеся в продаже профили.
Типы профилей для монтажа пластиковых панелей
Итак, профили бывают следующих типов:
1. П-образный профиль (стартовый, начальный). Данный профиль предназначен для того, чтобы закрывать торцевые части панелей, а также может быть использован тогда, когда панели примыкают к оконным или дверным проемам.
2. F-образный профиль предназначен для того, чтобы все имеющиеся торцевые элементы поверхностей, такие как стыки с другими материалами, дверные и оконные проемы, а также угловые соединения, имели декоративное завершение.
3. Н-образный профиль (соединительный или разъединительный профиль) предназначен для того, чтобы панели можно было соединить друг с другом, то есть нарастить длину панелей.
4. Угол внешний нужен для того, чтобы закрыть соединения панелей наружных (внешних) углов.
5. Угол внутренний нужен для того, чтобы закрыть соединения панелей, которые образовались во внутренних углах.
6. Декоративный пластиковый угол (угол универсальный общестроительный) предназначен для того, чтобы заделывать внешние стыки панелей, расположенных под прямым углом. В магазинах можно найти углы, имеющие размеры от 10х10 и до 50х50.
7. Угол универсальный. Такой угол может применяться для того, чтобы заделывать как внешние, так и внутренние углы. Он может быть согнут под любым углом и, поэтому, представляет собой универсальное декоративное решение.
8. Потолочный плинтус (галтель) – закрывает стык и сглаживает переход между панелями и потолком.
9. Угол наружный (внешний) для потолочного плинтуса. Нужен для установки в тех местах, где на стене есть выступы, балки и колонны.
10. Угол для потолочного плинтуса внутренний нужен там, где стены образуют внутренние углы.
11. Соединительный элемент . предназначенный для потолочного плинтуса. Этот элемент используется для того, чтобы нарастить длину плинтуса, когда это необходимо.

12. Рейки . предназначенные для обрешетки и нужны для того, чтобы ускорить и упростить монтаж панелей из ПВХ. Такие рейки делаются из оцинкованной стали и пластика. К рейке панели крепятся при помощи специальных крепежных клипс, которые заменят собой гвозди и скобы.
Профиль для ПВХ панелей: выбираем и крепим
Для монтажа покрытия ПВХ используются специальные профили, которые служат основой для соединенных между собой панелей встык.
Сегодня профили могут изготавливаться из металла, пластика. Пластиковые по стоимости выгодны, но из-за плохого качества могут использоваться только в качестве дополнения и декоративного элемента.
Если разбираться в конструкции крепления, то можно обнаружить следующую особенность: пластиковая панель фиксируется и заводится в сам профиль. Чаще всего крепление выполнено из металла: стали или алюминия. В таком монтаже есть один недостаток – не удается получить абсолютно гладкую поверхность.
Разновидности
В монтаже конструкции из панелей используются следующие виды профиля:
- Начальный или стартовый. Устанавливается первым и задает направление всему остальному покрытию, закрывает торцы панелей.
- Соединительный. Этот элемент используется в соединении панелей, которые расположены в одной плоскости. Используется тогда, когда длины первой планки недостаточно.

- Потолочный служит декорированием стыка стены и потолка.
- F-профиль применяется для отделки откосов из пластика.
- Угловые применяются для оформления углов, соединения в места, где расположены угловые стыки. В отделке помещения можно встретить углы внутренние и наружные, в зависимости от этого различают и угловой профиль.

Перед тем, как установить конструкцию из панелей, нужно обязательно просчитать количество монтажных профилей, которые продаются поштучно, также как направляющие уголки. По длине профили всегда стандартны и не превышают трех метров.